





-
-
Full Technical Support
-
Warranty Included
Solar Design & Permit Service
Solar Permitting Service Overview
Before you build your system, you’ll need to secure a solar permit from your authority having jurisdiction (AHJ) - the building department that oversees new construction in your area.
Your solar permit application will ask you to provide technical details about your new system, including a site plan, system design schematics, an electrical wiring diagram, spec sheets and certification documents for components used in your system.
The AHJ will review this information to ensure your system is designed to comply with electric, building and fire codes in your area.
Sound tedious? No worries: that’s where our Solar Permit Package comes in. We’ll design a safe, code-compliant system and provide all the documentation you need to secure your permit.
Our permitting service comes with a 100% money-back guarantee. We provide corrections if requested by your AHJ, and if your permit doesn’t get approved, we’ll refund your purchase in full. (See terms and conditions.)
Your Solar Permit Package Includes:
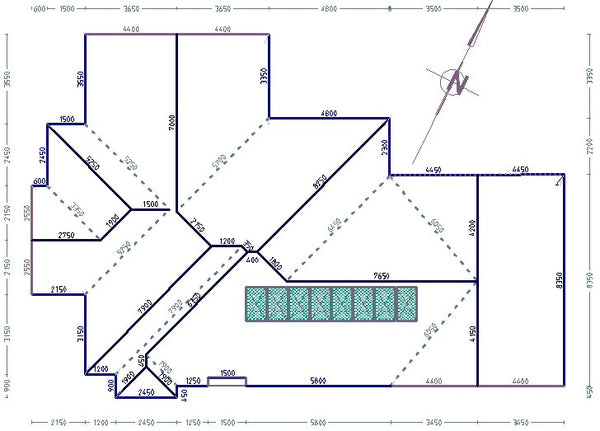
Detailed Solar Plan Set
A custom solar plan set unique to your project. Includes: site plan drawing electrical wiring diagram mounting attachment/structure details schematics, spec sheets, and certifications for all components electrical design calculations of the system.
AHJ Initiated Corrections
In the case that the city requests corrections to your project, we’ll make design changes and update your plan set at no additional cost.
Money-Back Guarantee
We’re not satisfied until you secure your permit and your system is fully operational! If for some reason your permit doesn’t get approved, we’ll refund your purchase in full. (See terms and conditions.)
Sample Solar Plan Set
Curious to know exactly what’s included in your permit package? Take a look at our Sample Solar Plan Set (PDF).
Click here to download Sample Solar Plan Set PDF
Solar Permitting: Frequently Asked Questions
How long before my solar permit is approved?
Typically 2-4 weeks, though that timeframe varies greatly depending on how quickly your local AHJ can process applications.
We have seen some permits approved in less than a week, while others can take up to 8 weeks. It all depends on the AHJ’s application backlog and the amount of resources available to process permits.
We also notice that lead times spike at the end of the year, the cutoff to claim the maximum federal solar tax credit. There’s always a surge of applications from people hoping to get their system in service before the Dec. 31st deadline. And with people taking time off for Thanksgiving, Christmas and New Year holidays, the waiting period can stretch out even further.
With such long lead times, we take extra care to submit complete and accurate data with your permit application, so that you don’t experience unnecessary delays during the permitting process.
Do I need a permit for my off-grid system?
Yes. Some people are under the impression that off-grid systems don’t require a permit, because they don’t connect to the utility grid. But that’s not true: your off-grid system still needs to be permitted and built to comply with local codes and regulations.
Off-grid systems can skip the solar interconnection approval process, since they don’t connect to the grid. However, all solar power systems require a permit from your local authority.
Beyond the need for compliance with your AHJ, it’s important to keep your plan set as essential documentation for your system. It serves as an installation guide, as well as an owner’s manual detailing proper maintenance and care. It also proves your system has been installed legally, which will be crucial to prove to inspectors during the sale process.
Should you decide to sell your home in the future, your plan set will help the new owner properly maintain the system and locate compatible products for scheduled part replacements.
How is the permit application filed?
Permit applications must be submitted by either the system owner or contracted installer of the system.
If you opt for a DIY installation, you’ll be required to file your own permit application. But don’t worry: we’ll package your plan set into one convenient PDF to make things as simple as possible. If you run into any hiccups, we’re happy to provide phone or email support to help you navigate the process.
Questions About the Solar Permitting Process?
Call us at (866) 995-1103 or request a consultation online. We’re happy to guide you through your solar project and answer any permitting questions you may have.
